
高压电磁阀 优质进口耐高温高压电磁阀规格型号齐全,规格完善。超高压系列电磁阀使用稳定可靠,上海川耐耐高温超高压永久伊甸院永久伊甸院生产供应,应用广泛 价格优惠。
川耐生产的高压电磁阀阀体经过锻打、高温回火、X光探伤检测、抛丸、CNC精加工等复杂流程,在加工、安装完成后,连续经过不用介质、不同压力的耐压强度测试和密封性能测试。
2.5MPa-4.0MPa、4.0-10.0MPa、10.0MPa-30.0MPa 30.0~95.0MPa系列耐超高压电磁阀结构标准,常见的连接方式有内螺纹(NPT螺纹、G螺纹、RC螺纹等)、卡套、承插焊、法兰等多种连接方式。
1、高压电磁阀的作用是什么:
高压电磁阀的作用核心就是对高压介质的快速切断或者极速释放, 多用于对高压气动、高压液体在临界工况下的瞬时开关控制。
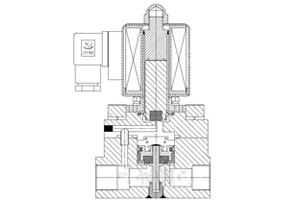
2、高压电磁阀的工作原理:
高压电磁阀的内部结构图如图所示,根据通径、介质粘度、压差和介质温度等参数要求不同,可选用直动式、分步直动式或者先导式结构,高压电磁阀的工作原理不会因为结构的变化而发生根本性的变化,都是通过瞬时通电后电流产生的磁效应,电磁阀阀芯会受到一个向上的瞬时拉力,这个拉力一般是用来克服介质阻力、弹簧弹力、阀芯重力之和的五倍左右,这样才会在瞬间完成开关阀的动作。
上海川耐-专业永久伊甸院永久伊甸院,研发的高温节电型高压电磁阀、高频型排气用高压电磁阀、五联六通高压系列电磁阀等连续多年被国内多家大型电厂、煤化工、新能源厂等评为优质产品。
多年来,上海川耐携手海内外众多客户,建立完善的互通机制,在高压电磁阀领域继续开创辉煌。








